Premium Only Content
This video is only available to Rumble Premium subscribers. Subscribe to
enjoy exclusive content and ad-free viewing.

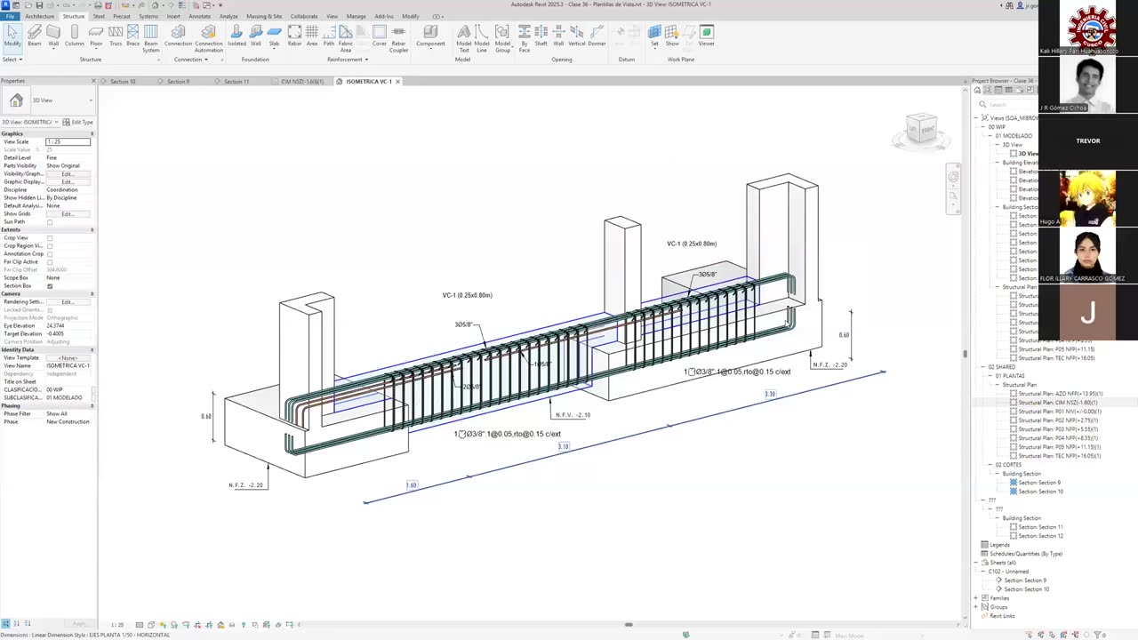
SESIÓN 10 MODELADO BIM CON REVIT ESTRUCTURAS
Loading comments...
-
1:05:28
Man in America
14 hours agoLIVE: Digital ID & the DEATH of Freedom—An URGENT Warning
64.3K76 -
40:24
The Connect: With Johnny Mitchell
1 day ago $6.52 earnedInside The WORST Drug-Infested Slums Of Medellin, Colombia
22.9K9 -
1:43:56
Tundra Tactical
10 hours ago $34.11 earned🛑LIVE NOW!! FBI Gets Caught LYING About Good Guys With Guns For 10 YEARS!!!!
53.2K5 -
2:12:01
BlackDiamondGunsandGear
2 days agoAFTER HOURS ARMORY / Antifa / Lies/ Prison time
31.5K2 -
2:12:00
DLDAfterDark
10 hours ago $13.62 earnedThe After Hours Armory! Tonight is The Chat's Chat! God, Guns, and Gear!
42.6K4 -
3:32:18
Mally_Mouse
13 hours ago🌶️ 🥵Spicy BITE Saturday!! 🥵🌶️- Let's Play: Phasmophobia
52K5 -
1:13:19
iCkEdMeL
9 hours ago $10.16 earnedChaos Explodes in Chicago & Portland | Feds Clash with Protesters!
52.4K30 -
21:54
Exploring With Nug
1 day ago $10.53 earnedScuba Diving Missing Person Search Leads to Discovery of Classic Cars!
66.8K19 -
8:06:32
Phyxicx
13 hours agoStar Wars: Movie Battles II Community Event hosted by ReaperAF95 - 10/4/2025
31.5K -
1:19:51
World2Briggs
12 hours ago $2.71 earnedThe US This Week
36.2K7