Premium Only Content
This video is only available to Rumble Premium subscribers. Subscribe to
enjoy exclusive content and ad-free viewing.
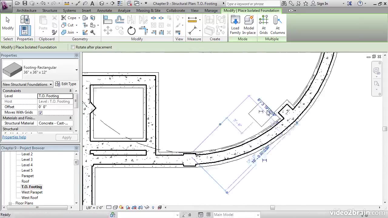
Revit Structural Modelling - Part 06
Loading comments...
-
13:33
MattMorseTV
14 hours ago $21.53 earnedThey actually TOOK THE BAIT…
48.2K48 -
16:09
Nikko Ortiz
2 days agoMilitary Fails That Got Soldiers In Trouble
51.6K12 -
2:21:49
PandaSub2000
10 hours agoSuper Seducer 3 - Part VII (w/DJC Game Studios) | PANDASUB PLAYS (Edited Replay)
8.27K1 -
24:36
GritsGG
13 hours agoINSANE Warzone Solo PR! 40 Bomb Dropped!
4.68K2 -
1:54:13
The Michelle Moore Show
1 day ago'Three Protocols For Miraculous Healing' Guest, Dr. Margaret Aranda: The Michelle Moore Show (Nov 18, 2025)
33.6K12 -
56:25
ThisIsDeLaCruz
1 day ago $0.05 earnedHow Benson Boone’s Engineer Mixes From a Room You Never See
4.48K -
6:10
Blabbering Collector
12 hours agoSaudi Arabia To Buy Warner Bros, Daniel Radcliffe Comments On HBO Harry Potter
6.65K1 -
LIVE
Lofi Girl
3 years agolofi hip hop radio 📚 - beats to relax/study to
262 watching -
36:57
The Pascal Show
1 day ago $1.69 earned'THERE'S NOTHING TO HIDE?!' Trump SUDDENLY Urges House Republicans To Vote Release Epstein Files
6.77K1 -
2:50:17
FreshandFit
14 hours agoClavicular Rates The Entire Panel’s Looks & They Get TRIGGERED
302K110